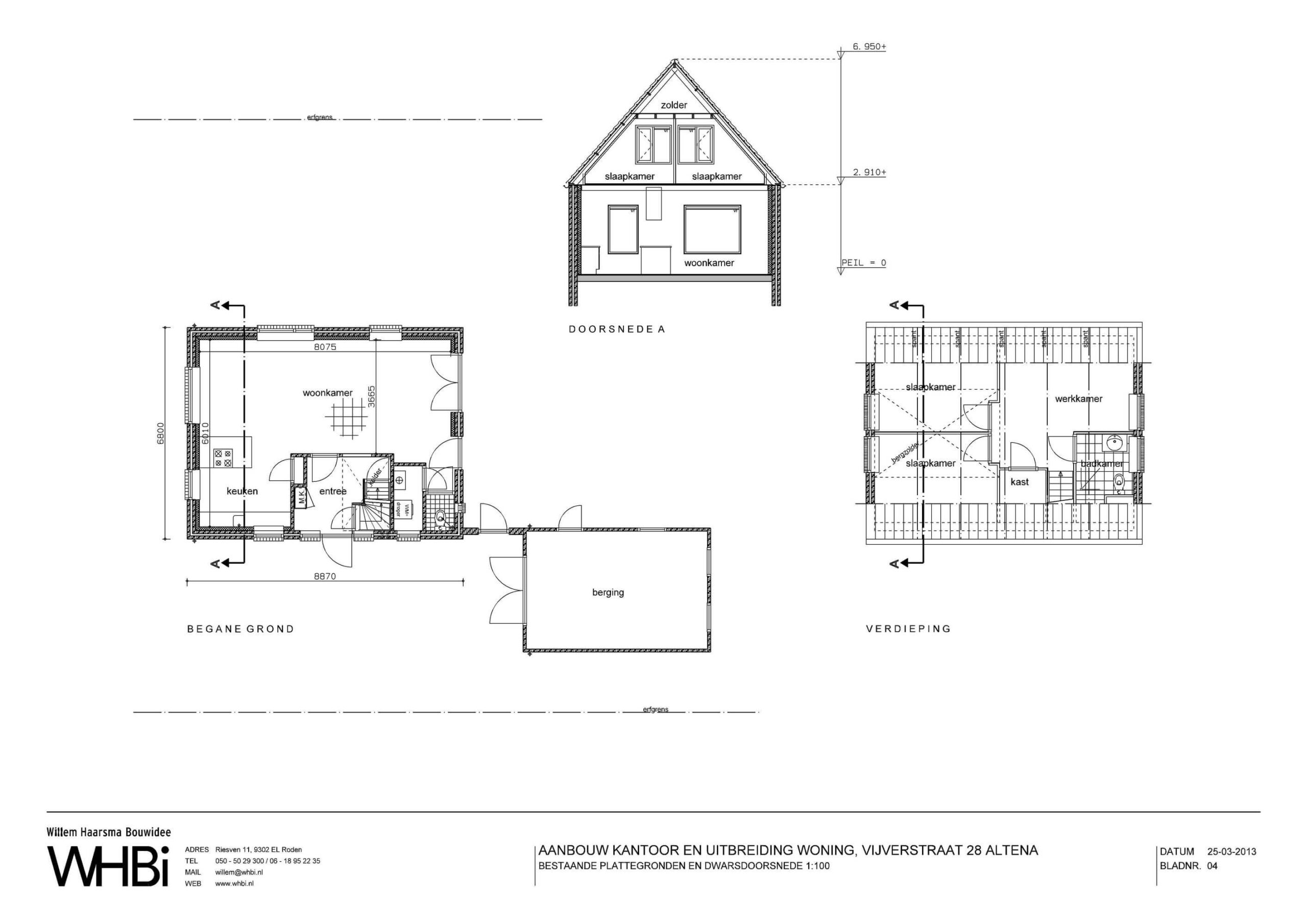
Vergroten woning en aanbouw kantoor aan de Vijverstraat in Altena (Drenthe)
Plaats: Altena
Dienst: ontwerp, technische uitwerking en vergunning
Status: bouw gereed december 2013
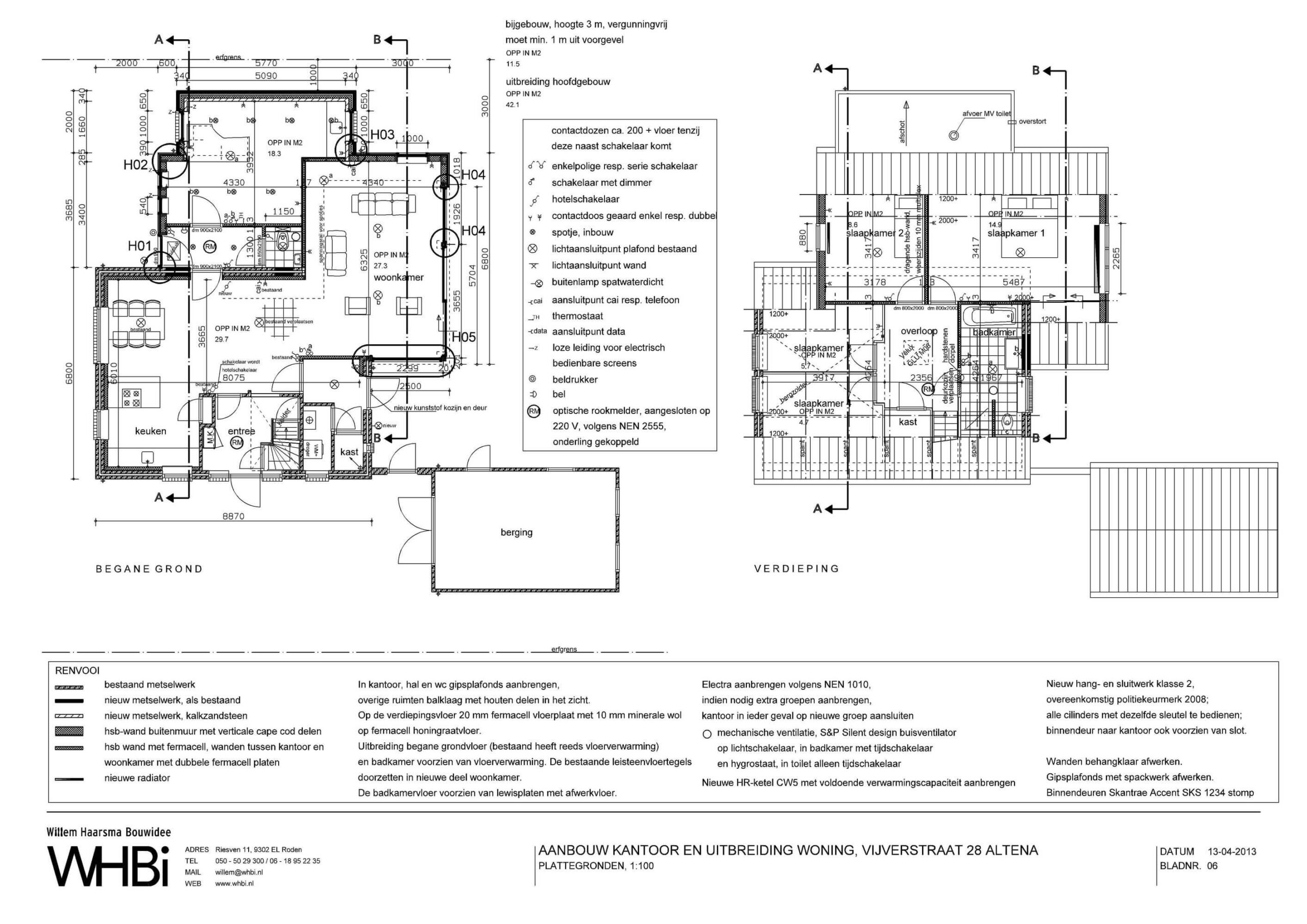
In Altena willen de eigenaren van een woning een kantoor aan huis bouwen, de woonkamer vergroten en op de verdieping 2 extra slaapkamers realiseren.
Om de structuur van de wijk te behouden en de huidige woning in zijn waarde te laten, is gekozen voor een aanbouw met verticale zwarte houten bekleding en zwarte keramische dakpannen. De vorm en verhoudingen van deze uitbreiding van het hoofdgebouw is verder hetzelfde gehouden als de bestaande woning. Doordat de aanbouw 2 meter naar achteren staat is de aanbouw als het ware een schaduw van de bestaande woning. Op detailniveau is de woning moderner, strakker vormgegeven. Aan de achterzijde is een grote raampartij met schuifpui gemaakt zodat volop van de tuin kan worden genoten en er veel daglicht binnen komt.
Het kantoor is gedeeltelijk lager gehouden en als aanbouw vormgegeven. Hierdoor is dit deel vergunning-vrij en past alles binnen het bestemmingsplan. Dit lage deel wordt in metselwerk uitgevoerd met dezelfde kozijnmaat als de bestaande woning.
De uitbreiding wordt goed geïsoleerd en voorzien van zonnepanelen. De bestaande betonnen pannen worden vervangen door duurzame keramische pannen. De zwarte houten gevelbekleding is minimaal 15 jaar onderhoudsvrij.










