Vergroten en verduurzamen woning in Rolde (Drenthe)
Plaats: Rolde
Dienst: ontwerp, technische uitwerking, omgevingsvergunning juli 2025
Status: start bouw juli 2025
De opdrachtgevers hebben een woning in Rolde gekocht en willen deze woning graag vergroten en verduurzamen. De begane grond bestaat nu uit verschillende kleine kamers. De huidige trap is erg steil en het halletje erg klein. De badkamer is ook erg klein. Op de verdieping zijn nu twee slaapkamers. Hier willen zij graag drie slaapkamers realiseren zodat hun kinderen elk een eigen slaapkamer kunnen krijgen.
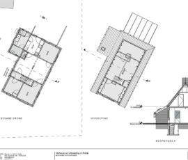
Er is daarom een verbouw- en uitbreidingsplan bedacht die vorenstaande problemen oplossen. Omdat de woning niet haaks op de weg staat, is er een, ten opzichte van de woning gedraaide aanbouw bedacht. Aan de voor- en achterzijde komen in deze aanbouw grote kozijnen voor veel daglicht en uitzicht. In deze uitbreiding komt de woonkeuken met kookeiland en kastenwand, de ruime eetkamertafel en woonkamer. Er komt een nieuwe ruime hal met nieuwe trap naar de verdieping en nieuwe meterkast. Vanuit deze hal is de kelder, de bijkeuken, werkkamer, woonkeuken en woonkamer bereikbaar. De badkamer wordt vergroot zodat er een ruime douche, dubbele wastafel en bad in past. Het toilet wordt ook groter.
Door het aanbrengen van een royale dakkapel en het recht trekken van de achtergevel komt er op de verdieping ruimte voor drie slaapkamers, een kledingkast, een toilet en vide bij de trap.
De nieuwe zijgevel van de aanbouw evenwijdig met de erfgrens wordt in hetzelfde metselwerk gebouwd als de woning. Tussen deze gevel en de woning komen kunststof puien met triple beglazing in de kleur antraciet. De boeien van het platte dak worden wit en sluiten aan op de witte windveren van de woning. De nieuwe topgevel aan de achterzijde wordt met antraciet hout betimmerd. Aan de voorzijde (zuidgevel) komt een luifel met zonwerende lamellen. De nieuwe zijmuur loopt hier daarom een stuk door.










