Uitbreiding en verbouw woning in Peize
Plaats: Peize
Dienst: ontwerp, omgevingsvergunning
Status: omgevingsvergunning december 2024, bouw gestart september 2025
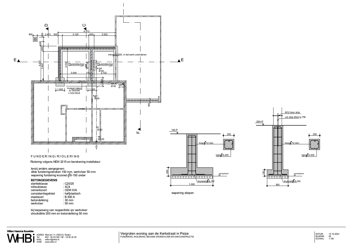
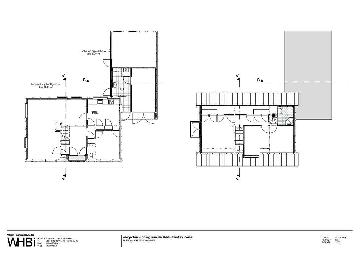
De eigenaar-bewoners willen de woning graag verbouwen en aan de achterzijde uitbreiden. Aan de achterkant willen zij graag een ruime woonkeuken en overdekt terras aanbouwen. De huidige garage en berging willen zij graag verhogen en de begane grondvloer verhogen zodat deze op dezelfde hoogte komt als de vloer van de woning. Op de verdieping willen zij een grotere badkamer realiseren en de slaapkamers graag vergroten door het aanbrengen van dakkapellen. Verder wordt de woning verduurzaamd door betere isolatie, vloerverwarming, nieuwe kozijnen met triple beglazing en zonnepanelen.
De nieuwe aanbouw met overdekt terras wordt in houtskeletbouw uitgevoerd en bekleed met verticaal aangebracht antraciet hout. De garage wordt ook met dit hout bekleed en aan de binnenzijde geïsoleerd. In de nieuwe woonkeuken komen twee ruime schuifpuien voor veel licht/uitzicht en toegang tot het overdekt terras. Aan de achterzijde van de aanbouw krijgt het dak een fors overstek met lamellen als zonwering. In de woonkeuken komt een royaal keukeneiland en een kastenwand. De huidige keuken wordt bijkeuken. In latere instantie is in overleg met de aannemer besloten de garage ook te vernieuwen. Dit blijkt qua kosten weinig verschil te maken.
Op de verdieping komt aan de achterzijde een zo groot mogelijke dakkapel. Hierdoor kan de badkamer groter worden en worden voorzien van een extra toilet, dubbele wastafel en een ruime inloopdouche. De ouderslaapkamer wordt daardoor ook een stuk groter en krijgt een inloopkast. Door aan de voorzijde een nieuwe grotere dakkapel aan te brengen wordt de slaapkamer daar ook ruimer en komt er bij de trap en overloop ook daglicht binnen. De dakkapel aan de achterzijde wordt in de stijl van de aanbouw met antraciet hout afgewerkt en wordt voorzien van screens. De dakkapel aan de voorzijde krijgt op verzoek van welstand een witte dakrand.









