Nieuwe recreatiewoning in Doldersum
Plaats: Doldersum
Dienst: ontwerp, omgevingsvergunning, werktekeningen, interieurtekeningen, bouwbegeleiding
Status: start bouw januari 2024, opgeleverd juni 2024
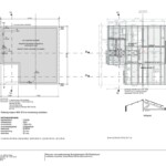
De opdrachtgevers willen hun recreatiewoning in Doldersum graag moderniseren, verduurzamen en vergroten. De slaapkamers en de badkamer zijn te klein en de vakantiewoning is niet geïsoleerd met nog enkel glas. De ligging van de woonkamer, keuken en slaapkamers was wel prima. Ook het model van de woning was zoals gewenst. Daarom zijn er in eerste instantie plannen gemaakt voor renovatie en uitbreiding van de bestaande vakantiewoning. Dit bleek echter bijna net zo duur als nieuwbouw te worden. Uiteindelijk is er daarom gekozen voor sloop en nieuwbouw.
De nieuwe recreatiewoning heeft twee ruimere slaapkamers en een ruimere badkamer. Ook is er een techniekruimte met plaats voor de warmtepomp, wasmachine en droger. De keuken heeft meer bergruimte door de apparatenwand. In een slaapkamer is nu een nis met werkplek om thuis te kunnen werken. Het dak blijft in het zicht zodat er mooie hoge ruimten ontstaan. In slaapkamer 2 komt een tweepersoons stapelbed; door de hoogte hebben beide bedden veel zitruimte. Voor extra daglicht komen in de hal 3 dakramen en in de woonkamer/keuken een groot dakraam.
De woning wordt in houtskelet bouw gebouwd en prefab gemaakt. De buitengevels worden met onbehandelde Thermowood latten afgewerkt. De houten kozijnen worden van thermisch verduurzaamd naaldhout gemaakt met duurzaamheidsklasse 2. De woning krijgt vloerverwarming, een luchtwarmtepomp, triple beglazing.

















