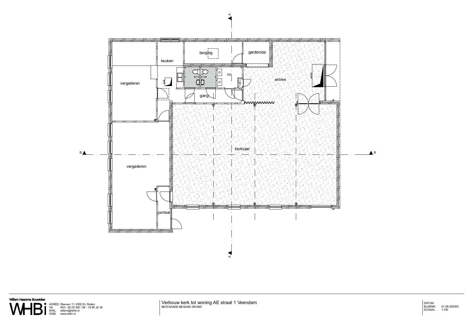
Herbestemming kerk tot woning in Veendam
Plaats: Veendam
Dienst: ontwerp en omgevingsvergunning
Status: omgevingsvergunning september 2020
De opdrachtgevers hebben de kerk vlak bij het centrum van Veendam gekocht en willen de kerk tot woning verbouwen. De kerk ligt vlak bij winkels en heeft weinig tuin zodat zij hier nog lang kunnen blijven wonen.
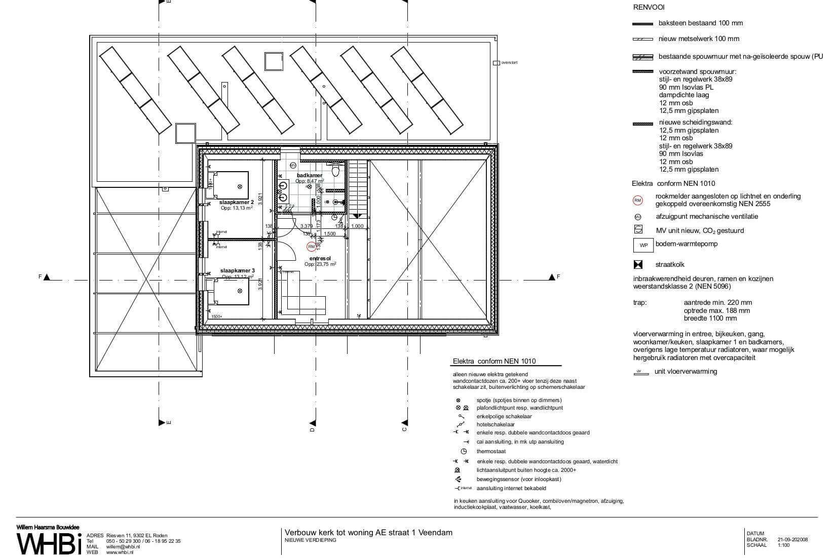
De kerkzaal wordt voor ongeveer de helft van een verdiepingsvloer voorzien. Op deze verdieping komen twee slaapkamers, een badkamer en een chill ruimte om bijvoorbeeld te kunnen gaimen.
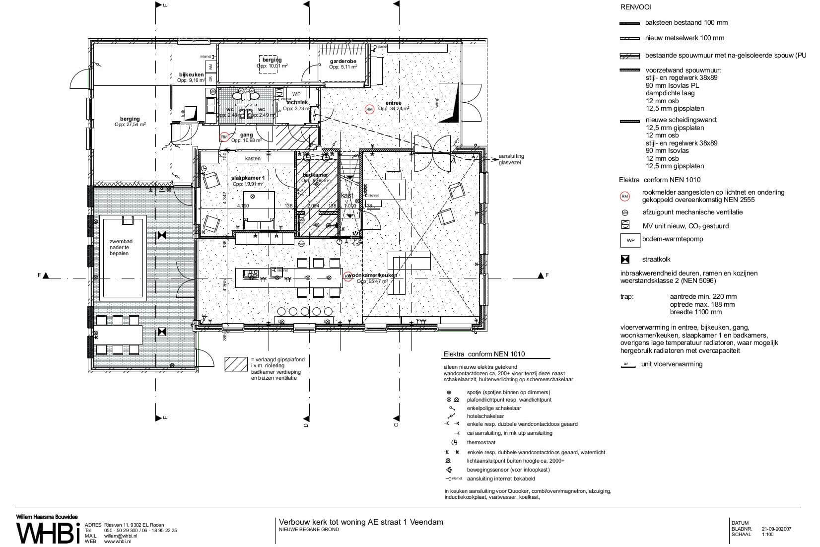
Op de begane grond komt in de kerkzaal de ouderslaapkamer met badkamer zodat de woning levensloopbestendig is. In de overige ruimte van de kerkzaal komt de woonkeuken met kookeiland en apparatenwand, woonkamer en een werkhoek.
Een deel van het bijgebouw aan de achterzijde wordt gesloopt zodat er een patio ontstaat met ruimte voor een zwembad en er bovendien daglicht en frisse lucht in de ouderslaapkamer komt. De rest van het bijgebouw wordt fietsenberging, hobbyruimte, bijkeuken en bergruimte. In de voortuin komt ruimte voor het parkeren van auto’s. Hiervoor is een inritvergunning verleend.
De kerk wordt voorzien goede isolatie, zonnepanelen en van nieuwe (lucht-) verwarming. Een warmtepomp met vloerverwarming bleek helaas financieel niet haalbaar.











