Aanbouw tuinkamer in Leek
Plaats: Leek
Dienst: ontwerp, bouwkundige uitwerking, bouwbegeleiding
Status: opgeleverd juli 2017
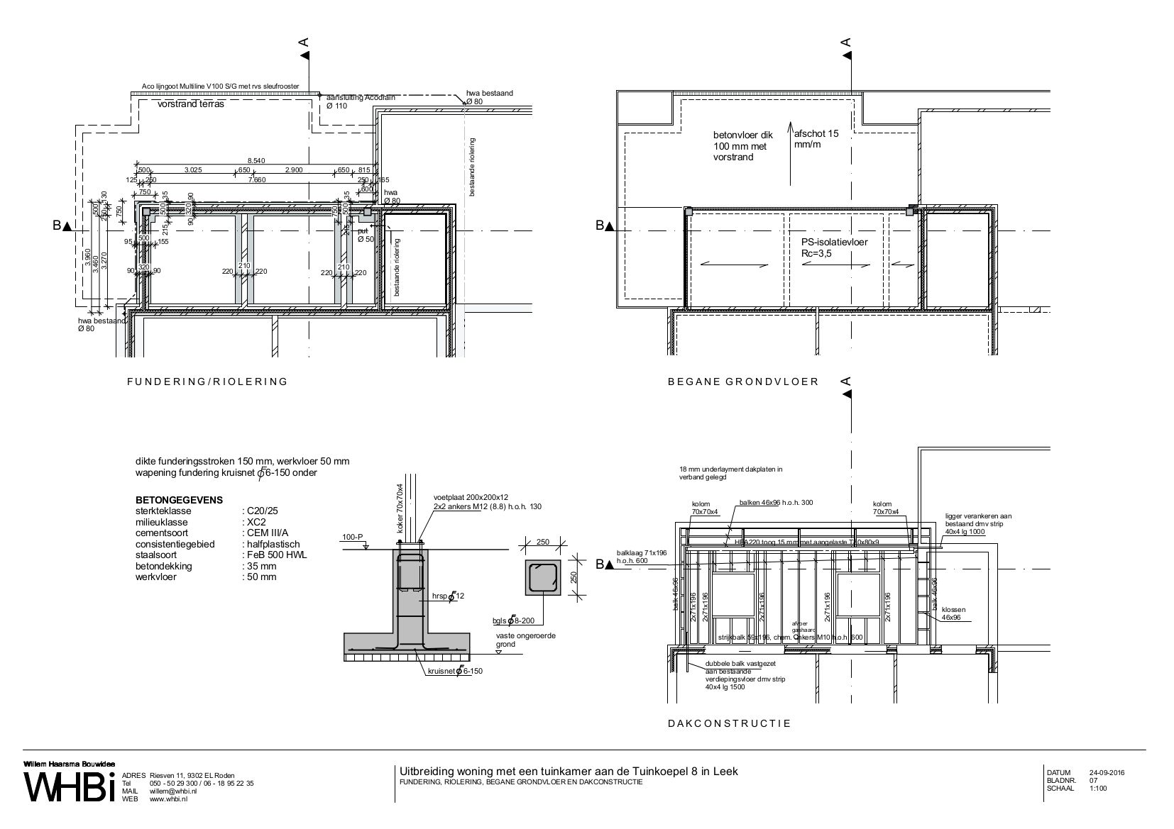
De eigenaren van een woning in Leek willen graag een tuinkamer aan hun woning bouwen. De tuinkamer krijgt aan 2 kanten glas, de andere 2 zijden zitten tegen de bestaande woning. In de lange gevel komen vouwpuien zodat deze kant naar behoefte kan worden geopend. In het dak komen 2 royale daklichten voor nog meer licht en gevoel van ruimte. De dakrand boven de vouw-pui heeft een royaal overstek zo dat ook bij open deuren geen regen naar binnen komt. In deze dakranden wordt verlichting ingebouwd. Om goed bij de bestaande woning te passen krijgt de dakrand dezelfde hoogte en schuinte als de bestaande dakranden van de woning. Voor de aanbouw is geen omgevingsvergunning nodig.








