Aanbouw en verduurzamen hoekwoning in Roden
Plaats: Roden
Dienst: ontwerp, bouwtekeningen
Status: bouw maart/april 2023
De opdrachtgevers willen hun hoekwoning graag verduurzamen en uitbreiden met een slaapkamer en badkamer op de begane grond. De opdrachtgevers zijn al wat ouder en willen graag in hun woning blijven wonen en de woning ook gasloos maken.
Diverse onderdelen van de woning zijn niet goed geïsoleerd en ook is er geen vloerverwarming aanwezig. Dit wordt nu ook direct aangepakt. De keuken wordt vernieuwd en voorzien van induktiekoken. Verder komt en nu een warmtepomp met als bron thermische pv-panelen in combinatie met een horizontale aardwarmtebron in de tuin. Tot slot komen er extra pv-panelen op het dak zodat de woning energieneutraal wordt.
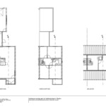
De slaapkamer met badkamer wordt tegen de zijgevel gebouwd. De slaapkamer is vanuit de woonkamer bereikbaar. Tussen de slaapkamer en badkamer komt een royale schuifpui. In de slaapkamer komt in de achtergevel een verdiepingshoge schuifpui. Bij deze achtergevel komt een luifel als zonwering die ook bij de bestaande woning wordt doorgetrokken naar de achterdeur. In de eetkamer, naast de slaapkamer komt een identieke schuifpui. De nieuwe kozijnen krijgen triple beglazing.
De aanbouw wordt in metselwerk uitgevoerd. In de zijgevel wordt ter plaatse van de badkamer een hoog geplaatst zinken ‘doosje’ met een kozijn geschoven. Hierdoor wordt de rechthoekige aanbouw doorbroken en oogt het speelser. In het metselwerk wordt bovendien plaatselijk een speciaal patroon gemetseld om het grote metselwerkvlak minder massief te maken. In de slaapkamer komt verder nog een verticaal kozijn zodat het vlak nog meer wordt onderbroken en er in de middag en avond ook nog zonlicht in de slaapkamer komt.










